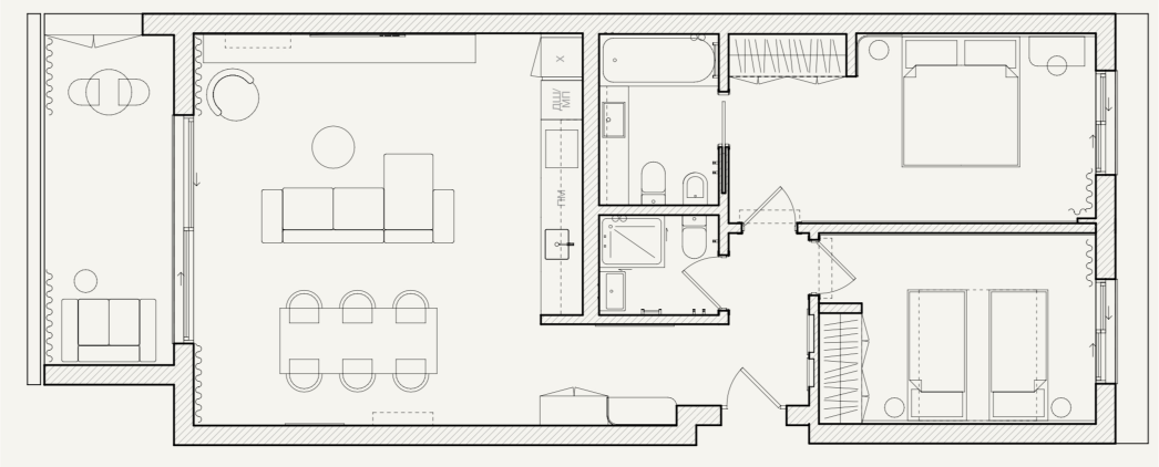
Faro Apartment

Project Area: 91 sq. m.
Project Year: 2024
Location: Kyiv, Ukraine
Architect and visualization: Anastasia Zagrai, Maryna Yermolova

Apartments for rent in the city of Faro, Portugal.

This space is inspired by the allure of resort living, uncluttered with clean lines and natural materials.

We added colors, texture, furniture and elements necessary for a comfortable stay to the almost finished apartments.

Restrained, natural, not too bright, complex colors and wooden custom furniture with soft streamlined lines create a calming, enveloping atmosphere.

Faro Apartment

Project Area: 91 sq. m.
Project Year: 2024
Location: Kyiv, Ukraine
Architect and visualization: Anastasia Zagrai, Maryna Yermolova

Apartments for rent in the city of Faro, Portugal.

This space is inspired by the allure of resort living, uncluttered with clean lines and natural materials.

We added colors, texture, furniture and elements necessary for a comfortable stay to the almost finished apartments.

Restrained, natural, not too bright, complex colors and wooden custom furniture with soft streamlined lines create a calming, enveloping atmosphere.